
Sun Mountain Research Center
In 1983, “green building” was barely a concept, but George and Maia Ballis were already asking a powerful question:
How can we live in integrity with the Earth in the places we call home?
Their answer was SunHouse, an early prototype of ecological architecture rooted in simplicity, conservation, and community empowerment.
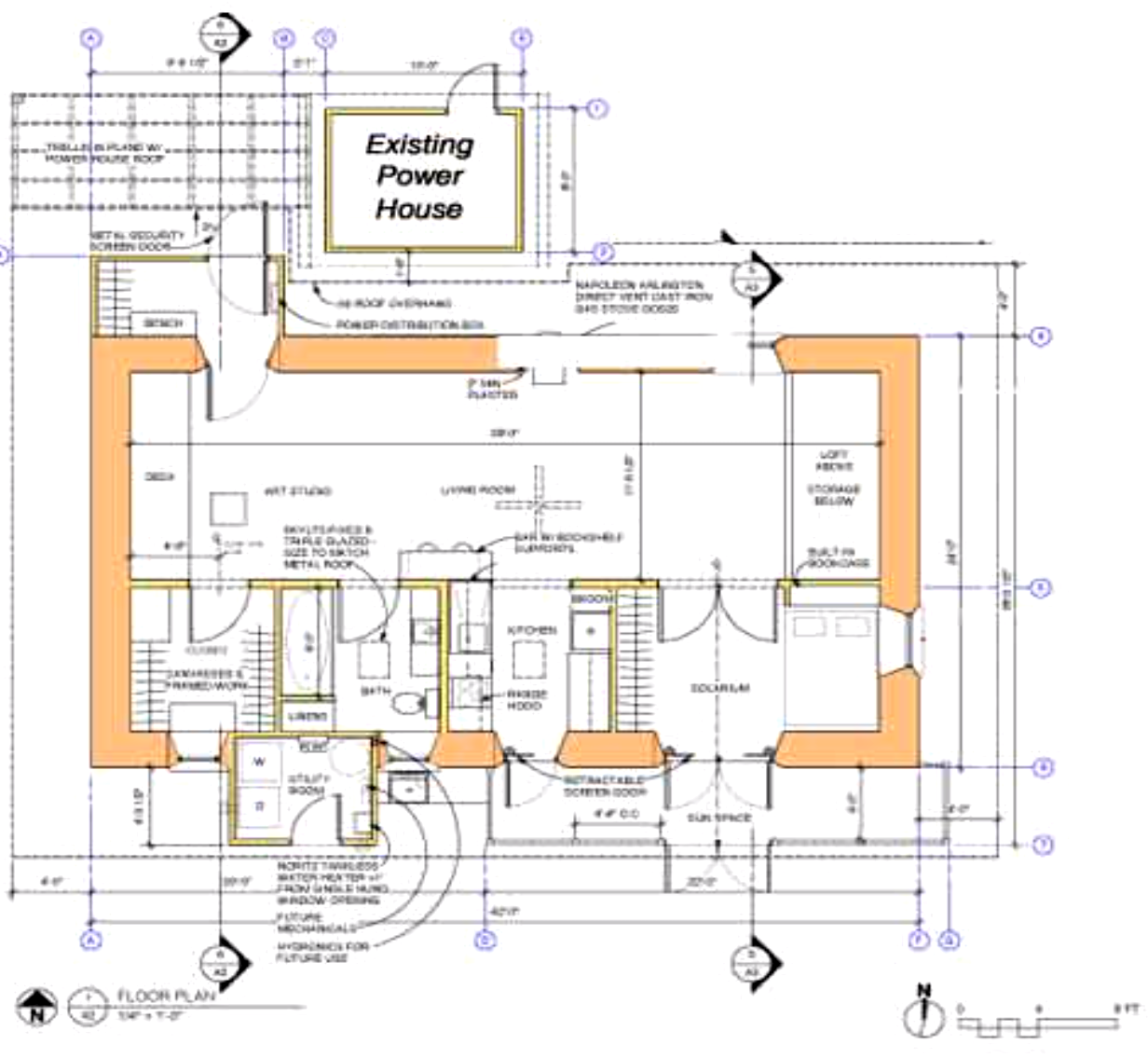
The Ballises believed that “conservation equals low energy needs,” and their design reflected that philosophy. The SunHouse featured:
- A pioneering solar electric system, (the first one approved by Fresno County)
- A R-35 insulation in the roof and walls
- White metal roofing coated with Cool Roof elastomeric paint
- Skylights brought in daylight while reducing heat gain
- Energy-efficient Pella windows and doors opened to capture prevailing winds for natural cooling.
- Handmade magnetic-insulated coverings for doors and windows designed by Maia
- Electrical wiring cleverly threaded through wood framing to make repairs and upgrades accessible
The Ballises were not just creating a structure — they were demonstrating a worldview. Their home was a living laboratory and teaching space. Visitors could place their hands on roofing samples to feel the temperature difference, witness passive cooling in action, and imagine new possibilities for home building rooted in regeneration.
Straw Bale Dreams and Agricultural Waste Solutions
Inspired by the revival of straw bale construction in the Southwest — particularly the work of Steve and Nena Macdonald — George and Maia saw a chance to extend their vision. Straw bale building offered thick, super-insulated walls (R-50+), was naturally fire and earthquake resistant, and turned agricultural waste into durable, beautiful shelter.
After a hands-on workshop, George caught what he called “straw bale fever.” For a decade, he and Maia worked with local architect Arthur Dyson and structural engineer Gere Mele to develop plans for an 800-square-foot structure adjacent to SunHouse. Their vision: an affordable, low-impact homegrown building system that could create rural jobs, reduce open-air burning, and shift building norms away from toxic materials and energy waste.
Although the project was ultimately shelved due to rising material costs, the blueprints were donated to the United Farm Workers for potential use in self-help housing. And the dream lived on — Dyson later incorporated straw bale into his shelter designs for Dakota Eco Village in Fresno.
Sun Mountain’s green building legacy stands as a powerful testament to innovation without ego. From early solar panels to homegrown smudging herbs, every element was chosen with care, purpose, and ecological integrity. In doing so, George and Maia helped lay the foundation for what we now call sustainable architecture.


